电机不参振给料机的给料过程是利用特制的振动电机或两台电动机带动激振器驱动给料槽沿倾斜方向作周期直线往复振动来实现,当给料槽振动的加速度垂直分量大于重力加速度时,槽中的料被抛起,并按照抛物线的轨迹向前跳跃运动,抛起和下落在瞬间完成,由于激振源的连续激振,给料槽连续振动,槽中的煤连续向前跳跃,以达到给料的目的。适用于矿山、冶金、化工,建材等行业各种散状物料的输送,也适用于水份高,含量大的粘性物料。
电机不参振给料机特点:
一、给料机电机为挠性联接,电机不参振,运行可靠,维修方便,运行周期长而不坏;
二、给料机安装形式有四种支撑方式和悬吊方式俩种;
三、电机不参振给料机的具体参数可根据物料特性由设计单位确定;
四、给料机振幅、槽体倾角以及频率(加变频调速器)都是可以进行调节的,易于配套和参与自动控制。料槽可配置各种衬板;
五、电机不参振给料机与其他类型给料机相比还具有给料量大、耗能低等优点。
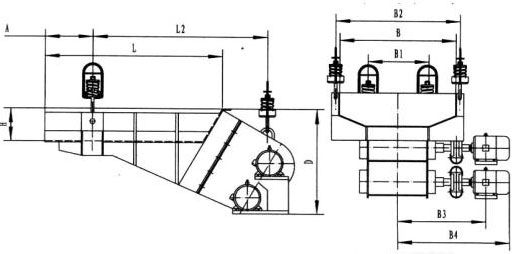
技术参数
| 型号 | 槽体尺寸 宽×长×高(mm) | 给料能力t/h | 电机型号 | 功率(千瓦) | 振动频率(Hz) | 振幅(双)(mm) | 重量 (公斤) | |
| α=0° | α=10° | |||||||
| BZG1015 | 1000×1500×200 | 200 | 450 | Y112M-6 | 2×1.5 | 16 | 12 | 998 |
| BZG1020 | 1000×2000×200 | 200 | 450 | 2×2.2 | 1053 | |||
| BZG1216 | 1200×1600×280 | 200 | 600 | 1050 | ||||
| BZG1220 | 1200×2000×280 | 200 | 600 | 1123 | ||||
| BZG1525 | 1500×2500×330 | 500 | 1200 | Y132S-6 | 2×3 | 1850 | ||
| BZG1530 | 1500×3000×330 | 500 | 1200 | 1992 | ||||
| BZG1825 | 1800×2500×330 | 800 | 1500 | Y132M1-6 | 2×4 | 2180 | ||
| BZG1830 | 1800×3000×330 | 800 | 1500 | 2327 | ||||
| 型号 | A | H | L | D | B | B3 | B4 | B1 | L2 | B2 |
| BZG1015 | 400 | 288 | 1500 | 900 | 1000 | 649 | 949 | 600 | 1550 | 1200 |
| BZG1020 | 500 | 288 | 2000 | 900 | 1000 | 649 | 949 | 600 | 1950 | 1200 |
| BZG1216 | 400 | 288 | 1600 | 1000 | 1200 | 749 | 949 | 600 | 1650 | 1400 |
| BZG1220 | 500 | 288 | 2000 | 1000 | 1200 | 749 | 949 | 600 | 1950 | 1400 |
| BZG1525 | 800 | 330 | 2500 | 1170 | 1500 | 900 | 1146 | 907 | 2210 | 1735 |
| BZG1530 | 800 | 330 | 3000 | 1170 | 1500 | 900 | 1146 | 907 | 2710 | 1735 |
| BZG1825 | 800 | 330 | 2500 | 1170 | 1800 | 1079 | 1336 | 1207 | 2210 | 2035 |
| BZG1830 | 800 | 330 | 3000 | 1170 | 1800 | 1079 | 1336 | 1207 | 2710 | 2035 |
苏公网安备 32062102000309号